このページを印刷する
- 価格
-
5,000,000円
- 間取
-
2DK
- 管理費等
- 25,420円/月
| 所在地 | 福岡県北九州市小倉北区江南町 |
|---|---|
| 建物名 | ライオンズマンション小倉駅南第2 |
| 交通 |
|
| 築年月 | 1991年9月(築34年3ヶ月) | 新築/中古 | 中古 |
|---|---|---|---|
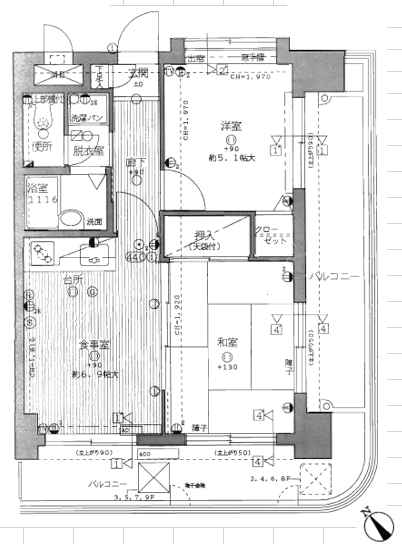
| 面積 | 41.80m²(12.64坪) | 計測方式 | 壁芯 |
| バルコニー | 19.93m²(6.02坪) | 向き | 南西 |
| 建物階数 | 地上10階 | 所在階 | 9階 |
| 部屋番号/区画番号 | --- | 総戸数/総区画数 | 62戸 |
| 建物構造 | SRC | ||
| 管理形態 | 全部委託管理人巡回管理組合:有 | ||
| 間取内容 | DK6.9帖 和室6.0帖 洋室5.1帖 | ||
| 住宅保険料 | |||
| 管理費(月額) | 14,550円 | 修繕積立金(月額) | 10,870円 |
| その他費用 | |||
| 駐車場 | 空無 | 取引態様 | 仲介 |
| 引渡/入居時期 | 相談 | 現況 | 空家 |
| 地目 | 用途地域 | 商業 | |
| 都市計画 | 市街化区域 | 地勢 | |
| 周辺環境 | ・「ローソン」徒歩2分 ・ スーパー「ザ・ビッグエクスプレス」徒歩5分 ・「ドンキホーテ」徒歩6分 |
||
| 設備・条件 |
|
||
| 物件カテゴリー | |||
| 物件番号 | 7183 | ||
| 情報登録日 | 2025年9月15日 | 情報更新日 | 2025年9月15日 |
・ 北九州市小倉北区江南町7番22号
・ 角部屋、2面バルコニー、3面採光の2DK :41.80㎡
・ 小倉中央小学校、菊陵中学校 校区
【設備】
・ TVモニター付オートロック
・ 宅配ボックス
・ エレベーター
・ システムキッチン (2口 ガスコンロ)
物件掲載内容と現況に相違がある場合は現況を優先といたします。
物件周辺マップ
Loading...
ご注意
- 物件によっては正確な位置を示していない場合がございます。
- 現況が表示された内容と異なる場合は現況優先といたします。
- 表示されてる地図はGoogle社より提供されてるデータに基づいたものであり、表示内容についての責任は負いかねます。
















